Italiano
English
Español
العربية
487.500 €

Villino a Ladispoli (RM)

Villa in vendita • Ladispoli - Via Dei Pesci
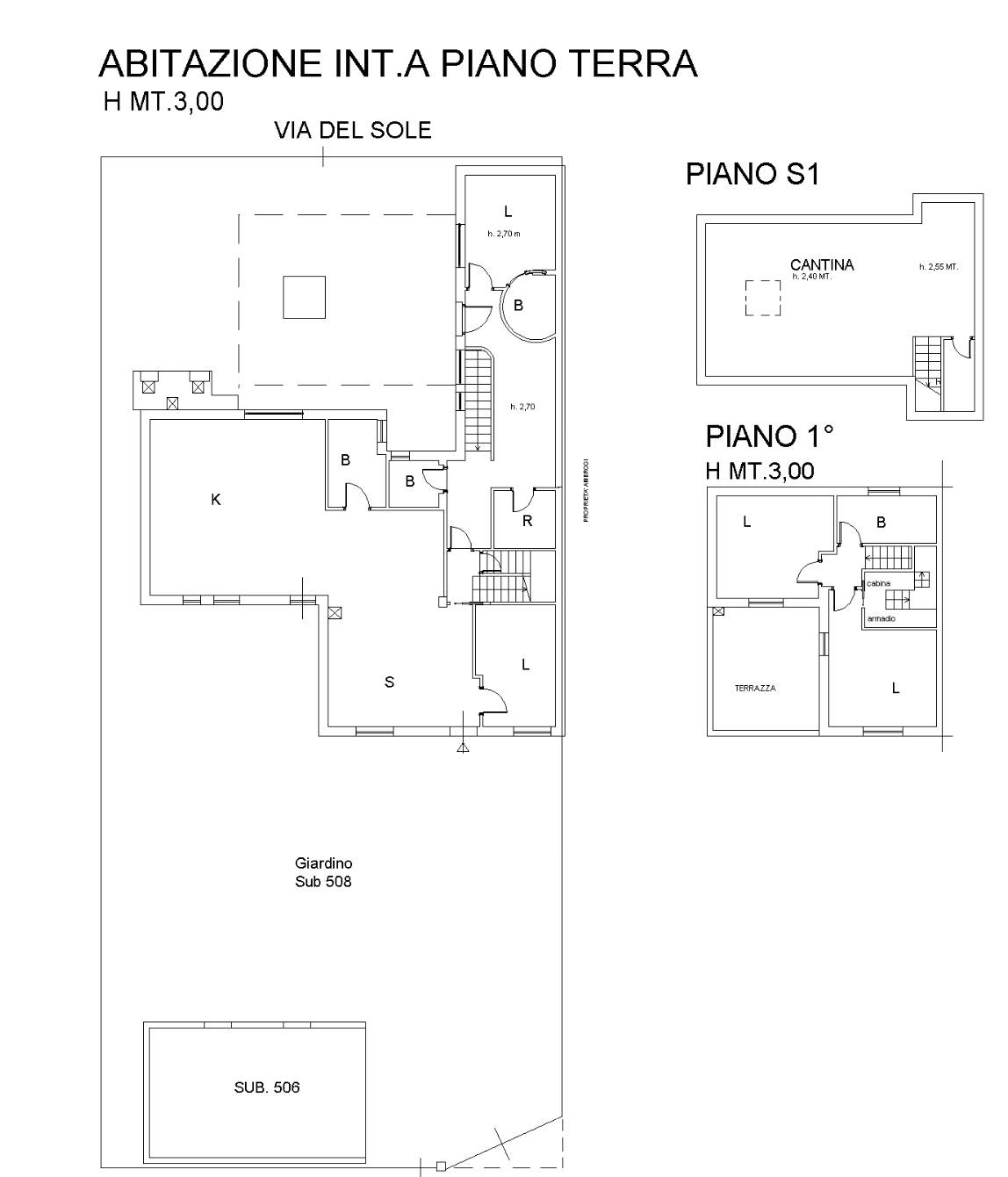
Villino su più livelli con annessa cantina e autorimessa situato a Ladispoli (Roma) località Marina di San Nicola in via dei Pesci, composto da una zona giorno con ingresso, soggiorno-sala da pranzo, cucina-tinello, uno studio, servizio igienico e disimpegno; zona notte distribuita tra i piani terra e primo, con disimpegno, locale lavanderia, tre camere da letto, due bagni ed una terrazza a livello del secondo piano; locale “ cantina “ al piano S/1, destinato al tempo libero, è dotato di un servizio igienico.

Stato di occupazione: Occupato con locazione ultranovennale del 02.11.2023.


22 REB opera a livello internazionale e mette a tua disposizione professionisti specializzati nel mondo delle aste immobiliari, con assistenza legale qualificata durante l’intera procedura.

Grazie al nostro broker partner è possibile valutare mutui e finanziamenti anche per acquisti all’asta.

Filiali operative: Treviso • Padova • Vicenza • Bassano del Grappa • Roma • Bergamo – prenota un appuntamento informativo per scoprire come funziona il settore delle aste immobiliari.

In ufficio potrai inoltre accedere a opportunità immobiliari riservate, parte di un portafoglio di immobili non pubblicati sui portali o di prossima uscita.

L’immobile è oggetto di vendita giudiziaria.

22REB non svolge attività di intermediazione immobiliare ai sensi della Legge 39/89. Le immagini sono indicative e non necessariamente rappresentative del bene.
Caratteristiche principali
Codice
GM4249/26
Città
Ladispoli
Categoria
Villa
Prezzo
487.500 €
Locali
1
Camere
3
Bagni
4
Mq
198
Box
1
Mq Box
48
Classe energetica
In fase di valutazione

Accessori: Ascensore

Mappa
Via Dei Pesci , Ladispoli (RM)
Condividi su
Cookie preference