Italiano
English
Español
العربية
140.515 €

Appartamento a Roma (RM)

Appartamento in vendita • Roma - Via Lari
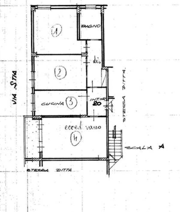
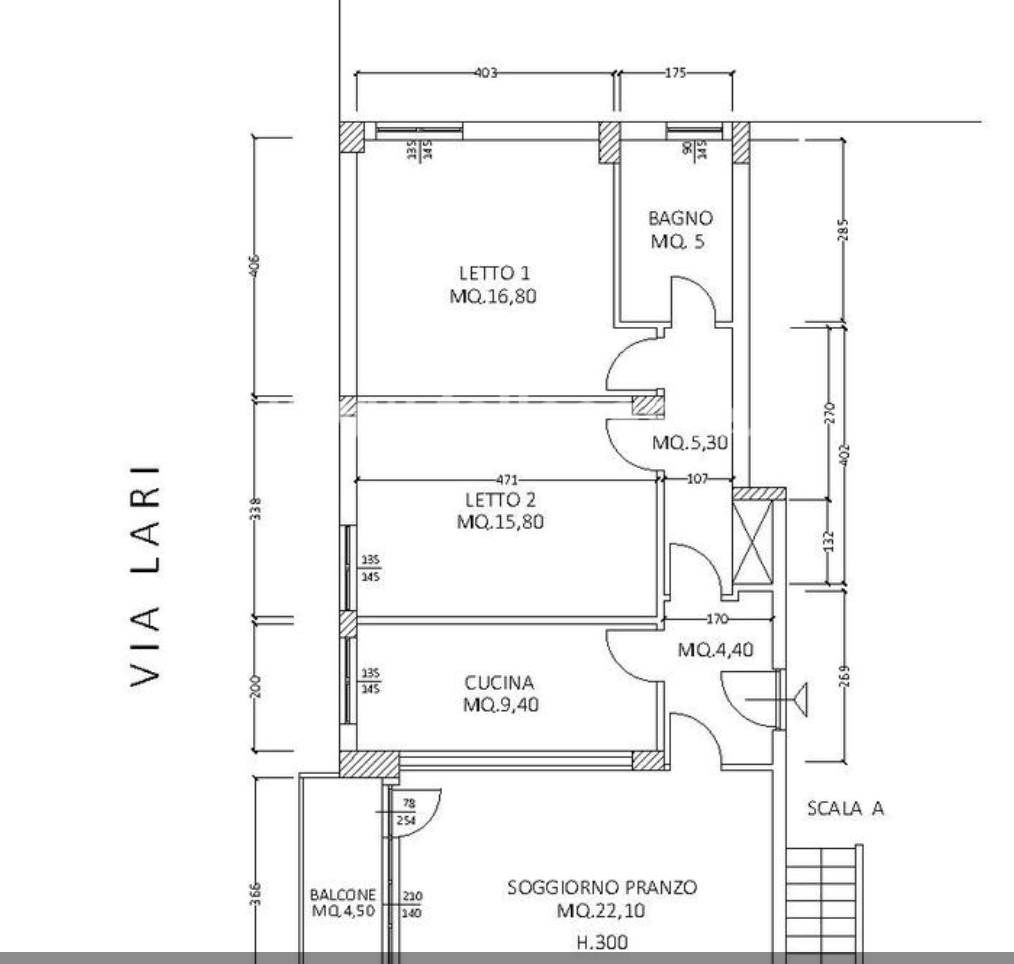
Appartamento al quinto piano ad uso civile abitazione situato in Roma (RM), zona Magliana in via Lari, composto da un ingresso, un soggiorno-sala da pranzo con balcone, una cucina, corridoio, due camere da letto e un bagno.


22 REB opera a livello internazionale e mette a tua disposizione professionisti specializzati nel mondo delle aste immobiliari, con assistenza legale qualificata durante l’intera procedura.

Grazie al nostro broker partner è possibile valutare mutui e finanziamenti anche per acquisti all’asta.

Filiali operative: Treviso • Padova • Vicenza • Bassano del Grappa • Roma • Bergamo – prenota un appuntamento informativo per scoprire come funziona il settore delle aste immobiliari.

In ufficio potrai inoltre accedere a opportunità immobiliari riservate, parte di un portafoglio di immobili non pubblicati sui portali o di prossima uscita.

L’immobile è oggetto di vendita giudiziaria.

22REB non svolge attività di intermediazione immobiliare ai sensi della Legge 39/89. Le immagini sono indicative e non necessariamente rappresentative del bene.
Caratteristiche principali
Codice
GM4259/26
Città
Roma
Categoria
Appartamento
Prezzo
140.515 €
Locali
5
Camere
2
Bagni
1
Mq
94
Piano
5
Classe energetica
In fase di valutazione

Accessori: Ascensore

Mappa
Via Lari , Roma (RM)
Condividi su
Cookie preference