Casa singola a Ludo di Vicenza (VI)
Casa singola in vendita • Lugo di Vicenza - Via Sioggio
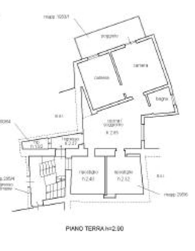
Edificio residenziale su più livelli e terreni agricoli situati a Lugo di Vicenza (VI) in via Sioggio. Abitazione composto al piano interrato sono presenti locali accessori all’abitazione, al piano terra la zona giorno, due camere da letto, un bagno e due locali accessori; al piano primo un disimpegno ed una camera; al piano secondo un locale soffitta. Terreni agricoli per una superficie complessiva di 2.400 metri quadri.
22 REB opera a livello internazionale e mette a tua disposizione professionisti specializzati nel mondo delle aste immobiliari, con assistenza legale qualificata durante l’intera procedura.
Grazie al nostro broker partner è possibile valutare mutui e finanziamenti anche per acquisti all’asta.
Filiali operative: Treviso • Padova • Vicenza • Bassano del Grappa • Roma • Bergamo – prenota un appuntamento informativo per scoprire come funziona il settore delle aste immobiliari.
In ufficio potrai inoltre accedere a opportunità immobiliari riservate, parte di un portafoglio di immobili non pubblicati sui portali o di prossima uscita.
L’immobile è oggetto di vendita giudiziaria.
22REB non svolge attività di intermediazione immobiliare ai sensi della Legge 39/89. Le immagini sono indicative e non necessariamente rappresentative del bene.
Caratteristiche principali
Classe energetica
In fase di valutazione
Mappa
Via Sioggio , Lugo di Vicenza (VI)