Italiano
English
Español
العربية
250.500 €

Appartamento a Roma (RM)

Appartamento in vendita • Roma - Via Anton Giulio Bragaglia
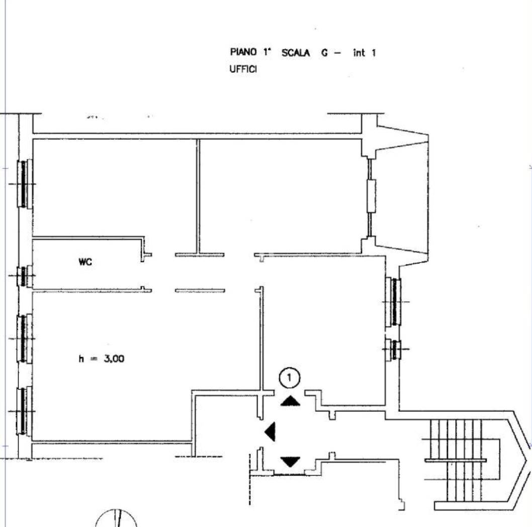
Appartamento ad uso ufficio al piano primo situato a Roma (RM) in via Anton Giulio Bragaglia, composto da ingresso-reception, tre vani principali, un servizio igienico, per una superficie convenzionale di complessivi mq. 147,00

Stato di occupazione: Contratto di locazione commerciale sottoscritto in data 05/08/2024, prevede una durata di sei anni dal 05/08/2024 al 05/08/2030 in ottemperanza a quanto stabilito dalla L.398/78, rinnovabile di altri sei anni, ed il canone mensile di euro 500,00 oltre iva, oltre le spese condominiali.


22 REB opera a livello internazionale e mette a tua disposizione professionisti specializzati nel mondo delle aste immobiliari, con assistenza legale qualificata durante l’intera procedura.

Grazie al nostro broker partner è possibile valutare mutui e finanziamenti anche per acquisti all’asta.

Filiali operative: Treviso • Padova • Vicenza • Bassano del Grappa • Roma • Bergamo – prenota un appuntamento informativo per scoprire come funziona il settore delle aste immobiliari.

In ufficio potrai inoltre accedere a opportunità immobiliari riservate, parte di un portafoglio di immobili non pubblicati sui portali o di prossima uscita.

L’immobile è oggetto di vendita giudiziaria.

22REB non svolge attività di intermediazione immobiliare ai sensi della Legge 39/89. Le immagini sono indicative e non necessariamente rappresentative del bene.
Caratteristiche principali
Codice
GM4291/26
Città
Roma
Categoria
Appartamento
Prezzo
250.500 €
Locali
5,5
Bagni
1
Mq
147
Piano
1
Classe energetica
In fase di valutazione

Accessori: Ascensore

Mappa
Via Anton Giulio Bragaglia , Roma (RM)
Condividi su
Cookie preference