Italiano
English
Español
العربية
56.459 €

Appartamento a Venezia (VE)

Appartamento in vendita • Venezia - Via Cattaneo
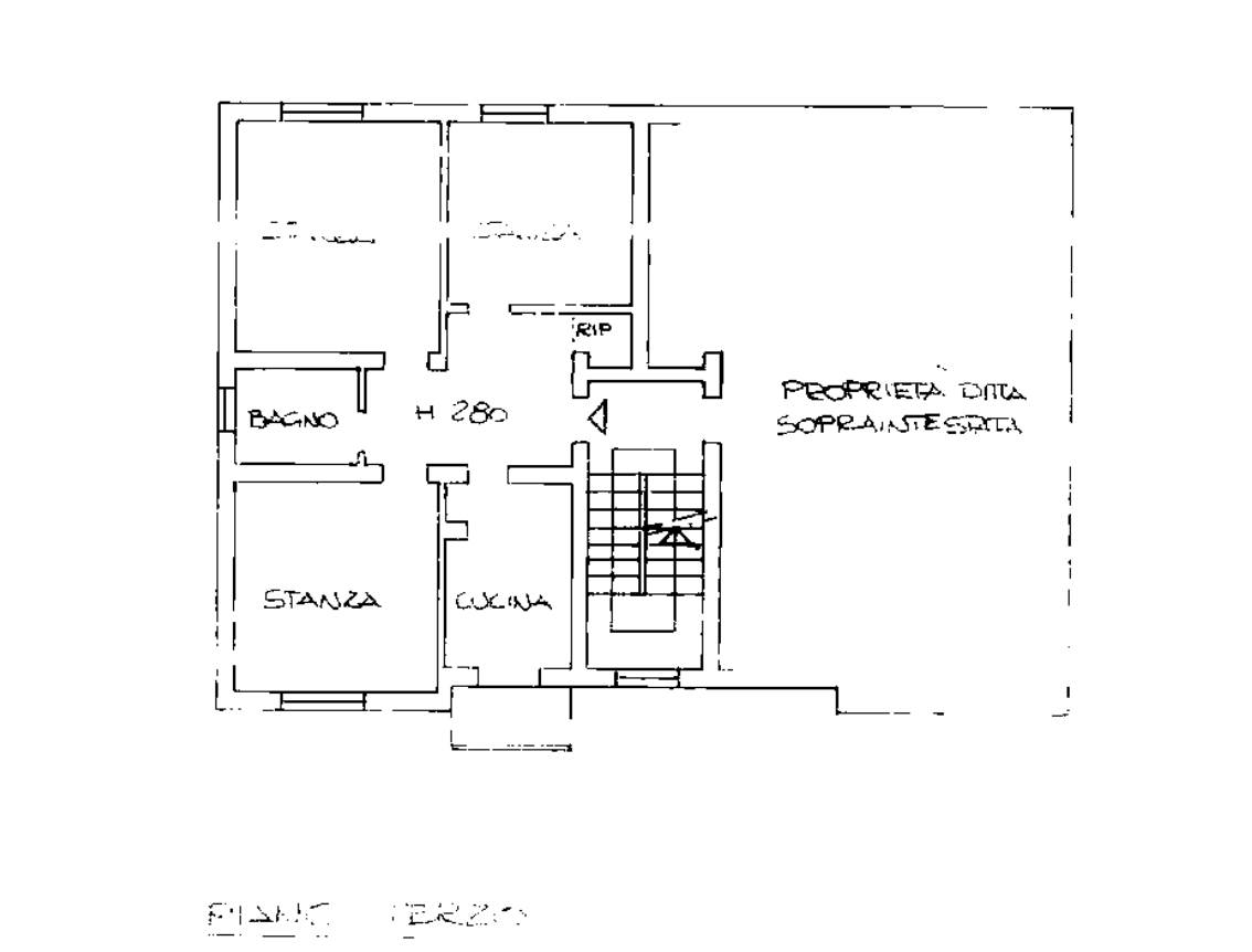
Appartamento al piano terzo in condominio di cinque piani situato a Venezia (VE) in via Cattaneo, composto da tre camere, bagno, antibagno, cucina, ripostiglio, poggiolo; impianto elettrico, idrico, riscaldamento autonomo, condizionamento; infissi doppio vetro e tapparelle in plastica; cantinola- magazzino. Stato di manutenzione: normale-mediocre; condizioni generali dell’immobile: normale-mediocre.


22 REB opera a livello internazionale e mette a tua disposizione professionisti specializzati nel mondo delle aste immobiliari, con assistenza legale qualificata durante l’intera procedura.

Grazie al nostro broker partner è possibile valutare mutui e finanziamenti anche per acquisti all’asta.

Filiali operative: Treviso • Padova • Vicenza • Bassano del Grappa • Roma • Bergamo – prenota un appuntamento informativo per scoprire come funziona il settore delle aste immobiliari.

In ufficio potrai inoltre accedere a opportunità immobiliari riservate, parte di un portafoglio di immobili non pubblicati sui portali o di prossima uscita.

L’immobile è oggetto di vendita giudiziaria.

22REB non svolge attività di intermediazione immobiliare ai sensi della Legge 39/89. Le immagini sono indicative e non necessariamente rappresentative del bene.
Caratteristiche principali
Codice
GM4299/26
Città
Venezia
Categoria
Appartamento
Prezzo
56.459 €
Locali
5,5
Camere
3
Bagni
1
Mq
84
Piano
3
Classe energetica
In fase di valutazione

Accessori: Ascensore

Mappa
Via Cattaneo , Venezia (VE)
Condividi su
Cookie preference