Italiano
English
Español
العربية
87.600 €

Appartamento a Roma (RM)

Appartamento in vendita • Roma - Via Cardinale Luigi Traglia
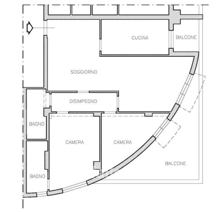
Appartamento al piano terzo con annessa cantina e posto auto facente parte di su condominio situato in Roma (RM) in via Cardinale Luigi Traglia, composta da un ingresso-soggiorno, disimpegni, due bagni, cucina, due ripostigli, due camere e due balconi.

Quota in vendita: Quota pari a 1/1 del diritto di proprietà superficiaria ex art. 35 l. 865/1971 per la durata di 99 anni rinnovabili.


22 REB opera a livello internazionale e mette a tua disposizione professionisti specializzati nel mondo delle aste immobiliari, con assistenza legale qualificata durante l’intera procedura.

Grazie al nostro broker partner è possibile valutare mutui e finanziamenti anche per acquisti all’asta.

Filiali operative: Treviso • Padova • Vicenza • Bassano del Grappa • Roma • Bergamo – prenota un appuntamento informativo per scoprire come funziona il settore delle aste immobiliari.

In ufficio potrai inoltre accedere a opportunità immobiliari riservate, parte di un portafoglio di immobili non pubblicati sui portali o di prossima uscita.

L’immobile è oggetto di vendita giudiziaria.

22REB non svolge attività di intermediazione immobiliare ai sensi della Legge 39/89. Le immagini sono indicative e non necessariamente rappresentative del bene.
Caratteristiche principali
Codice
GM4322/26
Città
Roma
Categoria
Appartamento
Prezzo
87.600 €
Locali
6
Camere
2
Bagni
2
Mq
102
Posti auto
1
Piano
3
Classe energetica
In fase di valutazione

Accessori: Ascensore

Mappa
Via Cardinale Luigi Traglia , Roma (RM)
Condividi su
Cookie preference