Italiano
English
Español
العربية
33.000 €

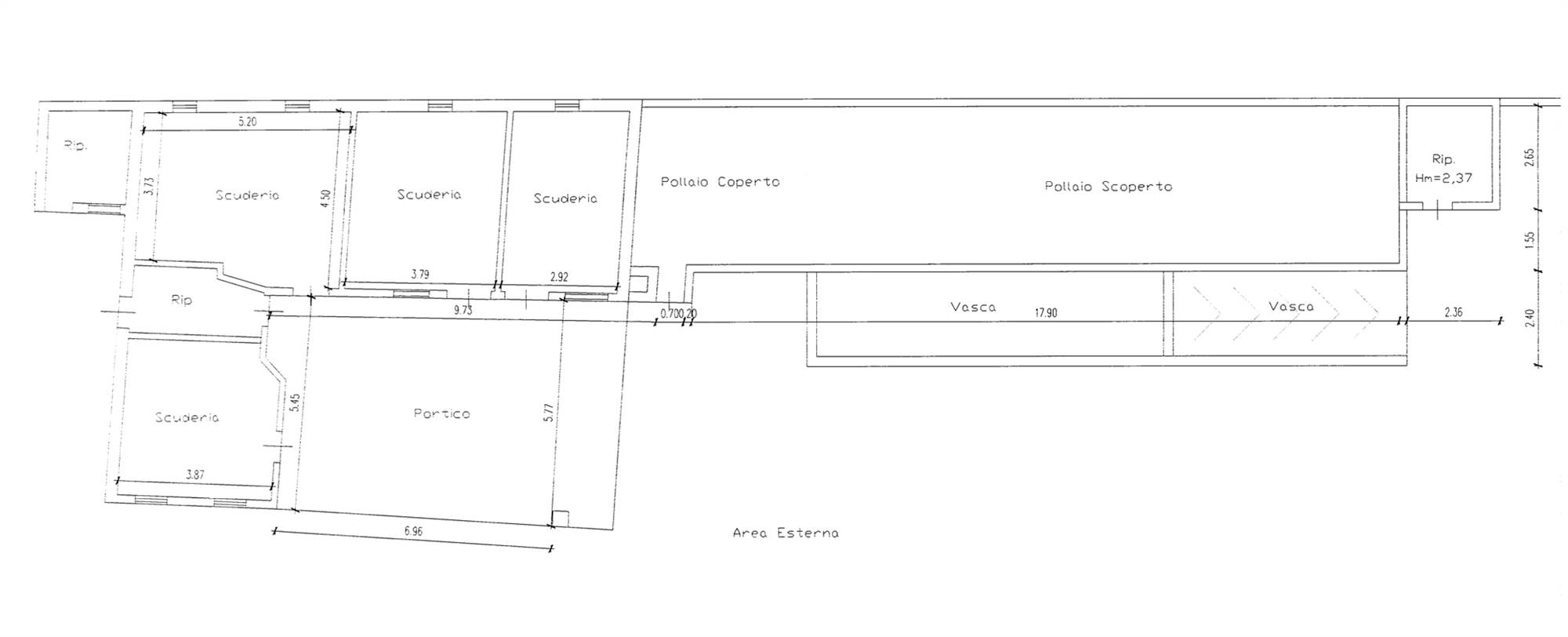
Scuderia ad Altivole (TV)

Capannone in vendita • Altivole - Via Montello
Fabbricato adibito prevalentemente a scuderia, con pertinenti aree destinate a maneggio situato ad Altivole (TV) in via Montello, per una superficie complessiva di 125 metri quadri.


22 REB opera a livello internazionale e mette a tua disposizione professionisti specializzati nel mondo delle aste immobiliari, con assistenza legale qualificata durante l’intera procedura.

Grazie al nostro broker partner è possibile valutare mutui e finanziamenti anche per acquisti all’asta.

Filiali operative: Treviso • Padova • Vicenza • Bassano del Grappa • Roma • Bergamo – prenota un appuntamento informativo per scoprire come funziona il settore delle aste immobiliari.

In ufficio potrai inoltre accedere a opportunità immobiliari riservate, parte di un portafoglio di immobili non pubblicati sui portali o di prossima uscita.

L’immobile è oggetto di vendita giudiziaria.

22REB non svolge attività di intermediazione immobiliare ai sensi della Legge 39/89. Le immagini sono indicative e non necessariamente rappresentative del bene.
Caratteristiche principali
Codice
GM4361/26
Città
Altivole
Categoria
Capannone
Prezzo
33.000 €
Locali
1
Mq
125
Classe energetica
In fase di valutazione

Accessori: Ascensore

Mappa
Via Montello , Altivole (TV)
Condividi su
Cookie preference