Appartamento a Montebello Vicentino (VI)
Appartamento in vendita • Montebello Vicentino - Via Tevere
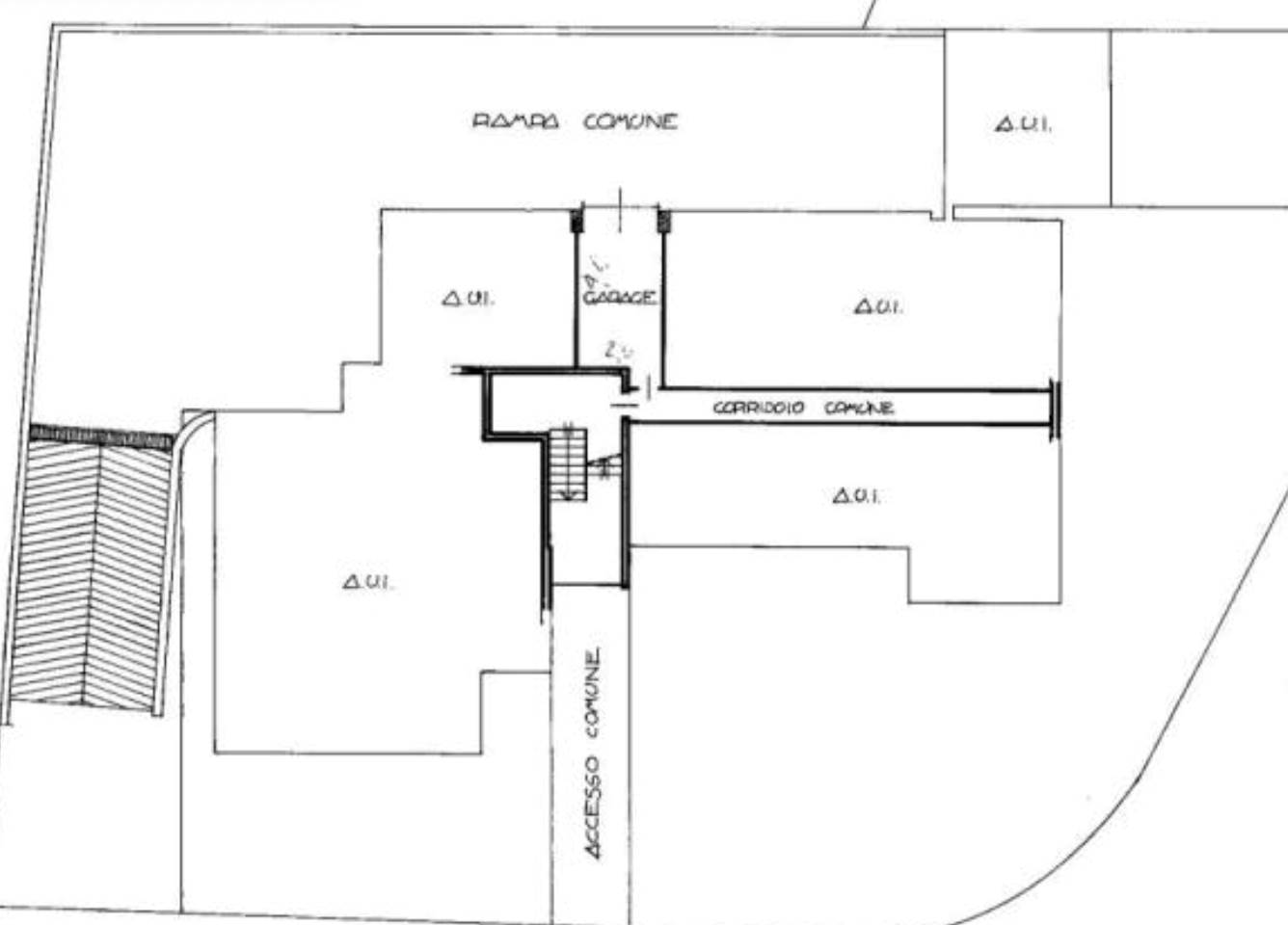
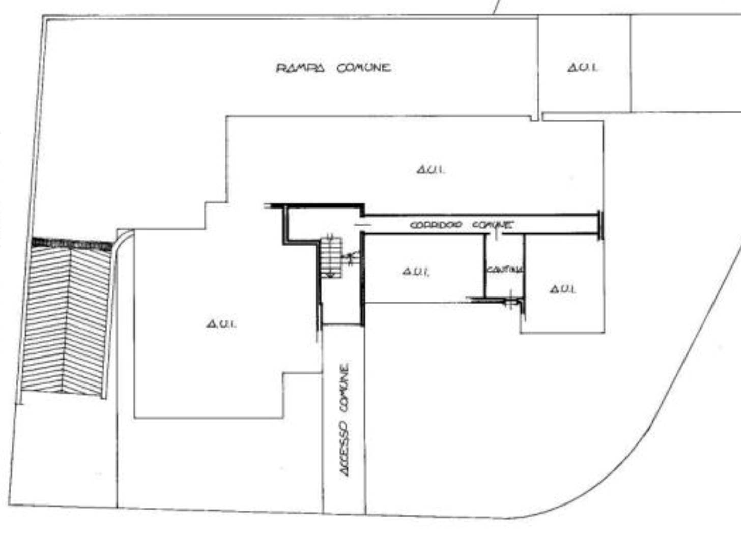
Appartamento al piano secondo con garage situato a Montebello Vicentino (VI) in via Tevere, composto da un ingresso, un soggiorno, cucina, disimpegno, due camere da letto, bagno e ripostiglio.
22 REB opera a livello internazionale e mette a tua disposizione professionisti specializzati nel mondo delle aste immobiliari, con assistenza legale qualificata durante l’intera procedura.
Grazie al nostro broker partner è possibile valutare mutui e finanziamenti anche per acquisti all’asta.
Filiali operative: Treviso • Padova • Vicenza • Bassano del Grappa • Roma • Bergamo – prenota un appuntamento informativo per scoprire come funziona il settore delle aste immobiliari.
In ufficio potrai inoltre accedere a opportunità immobiliari riservate, parte di un portafoglio di immobili non pubblicati sui portali o di prossima uscita.
L’immobile è oggetto di vendita giudiziaria.
22REB non svolge attività di intermediazione immobiliare ai sensi della Legge 39/89. Le immagini sono indicative e non necessariamente rappresentative del bene.
Caratteristiche principali
Città
Montebello Vicentino
Classe energetica
In fase di valutazione
Mappa
Via Tevere , Montebello Vicentino (VI)