Italiano
English
Español
العربية
308.250 €

Laboratorio a Schio (VI)

Capannone in vendita • Schio - Via Aspromonte
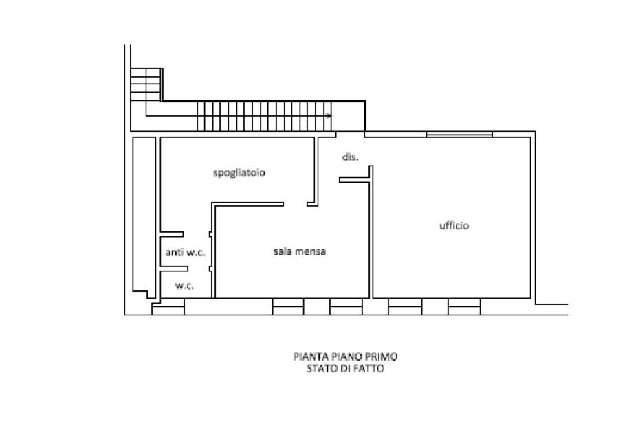
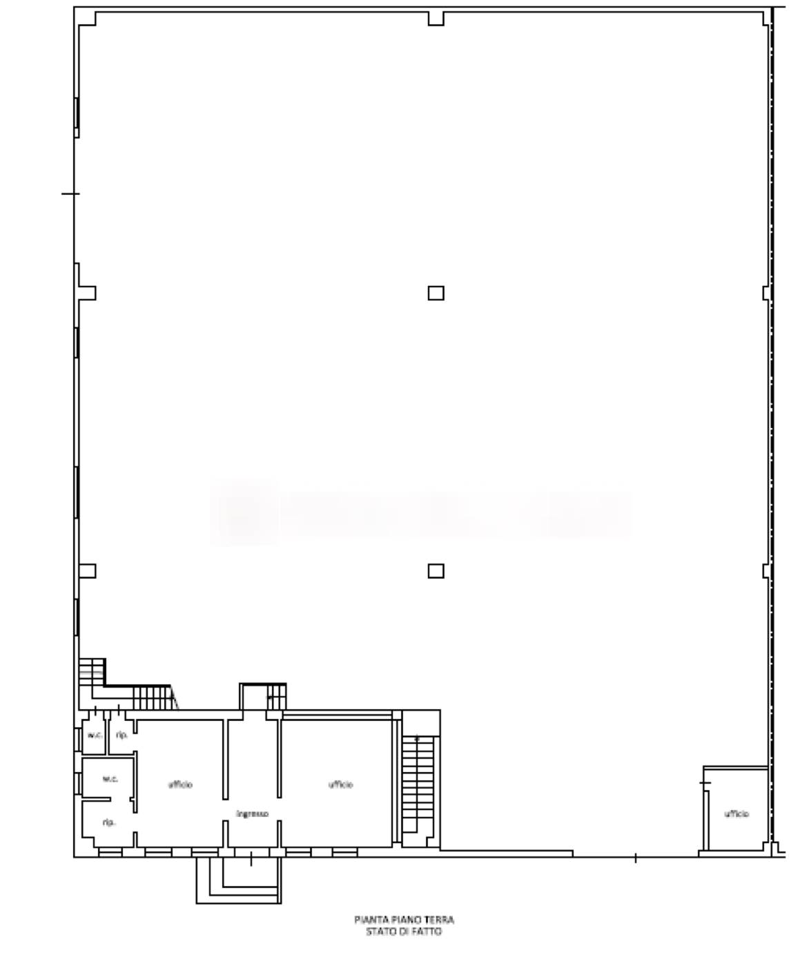
Capannone ad uso artigianale-industriale situato a Schio (VI) in via Aspromonte, lo spazio produttivo si sviluppa al piano terra. È presente un distinto corpo destinato a servizi (uffici, spogliatoi, w.c., magazzino) che si sviluppa ai piani interrato, terra e primo; al piano terra sono presenti due locali direzionali, l’ingresso, un servizio igienico con anti-bagno ed un ripostiglio; ulteriore w.c. a servizio dei locali produttivi; il piano primo, accessibile da scala in metallo interna, si articola in un disimpegno, un ufficio, una sala mensa e uno spogliatoio con w.c. e anti-bagno; il piano interrato è utilizzato come magazzino ed è accessibile internamente dalla zona produttiva; è presente, sempre al piano interrato, anche locale centrale termica con accesso da bocca di lupo esterna.

Oggetto di vendita: Per l’intero della proprietà superficiaria per la durata di 99 anni a decorrere dal 10.06.1982, l’immobile ricade all’interno dell’“area p.i.p. di via Vicenza”.



22 REB opera a livello internazionale e mette a tua disposizione professionisti specializzati nel mondo delle aste immobiliari, con assistenza legale qualificata durante l’intera procedura.

Grazie al nostro broker partner è possibile valutare mutui e finanziamenti anche per acquisti all’asta.

Filiali operative: Treviso • Padova • Vicenza • Bassano del Grappa • Roma • Bergamo – prenota un appuntamento informativo per scoprire come funziona il settore delle aste immobiliari.

In ufficio potrai inoltre accedere a opportunità immobiliari riservate, parte di un portafoglio di immobili non pubblicati sui portali o di prossima uscita.

L’immobile è oggetto di vendita giudiziaria.

22REB non svolge attività di intermediazione immobiliare ai sensi della Legge 39/89. Le immagini sono indicative e non necessariamente rappresentative del bene.
Caratteristiche principali
Codice
GM4436/26
Città
Schio
Categoria
Capannone
Prezzo
308.250 €
Locali
1
Mq
1027,9
Classe energetica
In fase di valutazione

Accessori: Ascensore

Mappa
Via Aspromonte , Schio (VI)
Condividi su
Cookie preference