Villa a Riano (RM)
Villa in vendita • Riano - VIia Tiberina
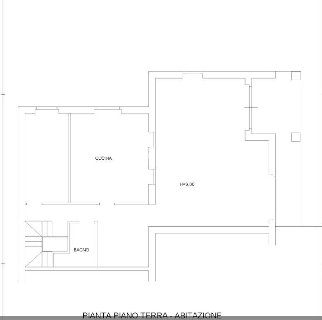
Villa su più livelli in edificio bifamiliare con autorimessa situato in Riano (RM) in via Tiberina, località Colle Romano, composto al piano interrato da garage e centrale termica; al piano terra da un soggiorno-cucina, bagno, una camera, portico; al piano primo da due camere da letto, un disimpegno ed un bagno.
22 REB opera a livello internazionale e mette a tua disposizione professionisti specializzati nel mondo delle aste immobiliari, con assistenza legale qualificata durante l’intera procedura.
Grazie al nostro broker partner è possibile valutare mutui e finanziamenti anche per acquisti all’asta.
Filiali operative: Treviso • Padova • Vicenza • Bassano del Grappa • Roma • Bergamo – prenota un appuntamento informativo per scoprire come funziona il settore delle aste immobiliari.
In ufficio potrai inoltre accedere a opportunità immobiliari riservate, parte di un portafoglio di immobili non pubblicati sui portali o di prossima uscita.
L’immobile è oggetto di vendita giudiziaria.
22REB non svolge attività di intermediazione immobiliare ai sensi della Legge 39/89. Le immagini sono indicative e non necessariamente rappresentative del bene.
Caratteristiche principali
Classe energetica
In fase di valutazione
Mappa
VIia Tiberina , Riano (RM)