Appartamento a Roma (RM)
Appartamento in vendita • Roma - Via di Valle Muricana
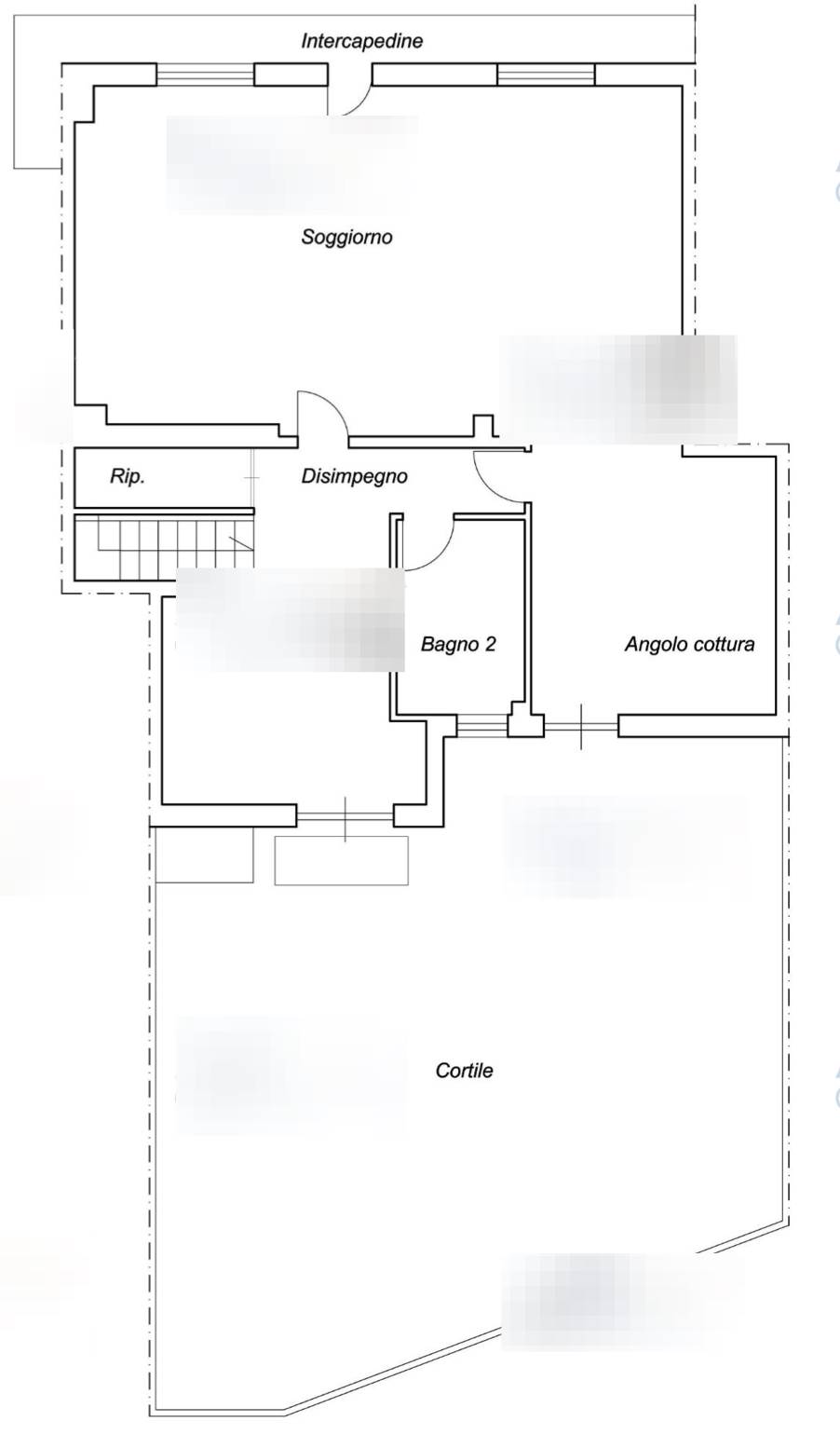
Appartamento al piano terra e seminterrato con annesso posto auto situato a Roma (RM) in via di Vale Muricana, composto al piano terra da un ingresso, uno studio, tre camere da letto, due bagni, balcone con accesso dalla camera 3, un
giardino dalla quale si accede all’abitazione, ed una scala interna dal quale si accede al piano interrato; al piano interrato da salone ampio con cucina a vista, una camera da letto, un bagno, un sottoscala, un’intercapedine perimetrale, ed un terrazzo con accesso dalla cucina e dalla camera.
22 REB opera a livello internazionale e mette a tua disposizione professionisti specializzati nel mondo delle aste immobiliari, con assistenza legale qualificata durante l’intera procedura.
Grazie al nostro broker partner è possibile valutare mutui e finanziamenti anche per acquisti all’asta.
Filiali operative: Treviso • Padova • Vicenza • Bassano del Grappa • Roma • Bergamo – prenota un appuntamento informativo per scoprire come funziona il settore delle aste immobiliari.
In ufficio potrai inoltre accedere a opportunità immobiliari riservate, parte di un portafoglio di immobili non pubblicati sui portali o di prossima uscita.
L’immobile è oggetto di vendita giudiziaria.
22REB non svolge attività di intermediazione immobiliare ai sensi della Legge 39/89. Le immagini sono indicative e non necessariamente rappresentative del bene.
Caratteristiche principali
Classe energetica
In fase di valutazione
Mappa
Via di Valle Muricana , Roma (RM)