Azienda agricola a Fara Vicentino (VI)
Azienda Agricola in vendita • Fara Vicentino - Via Colombare
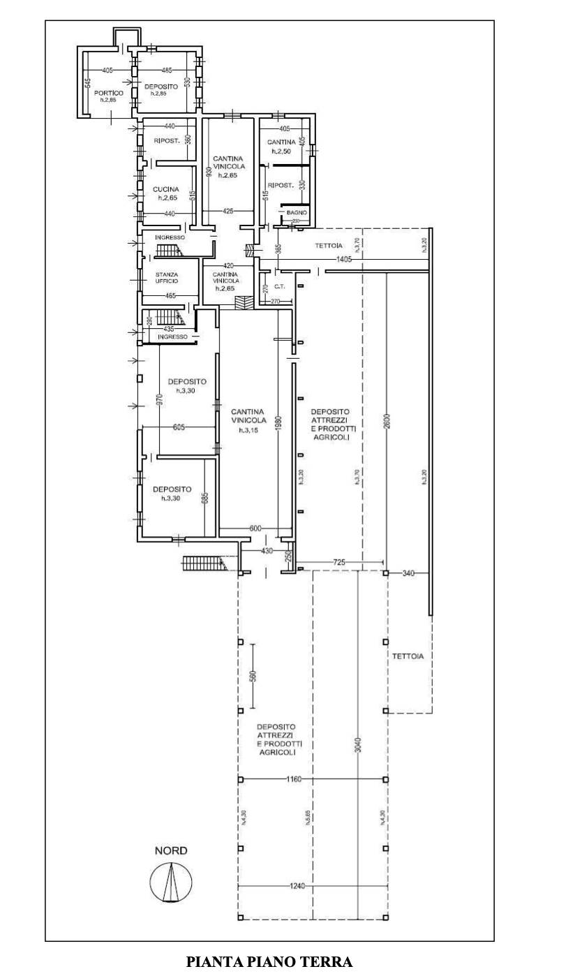
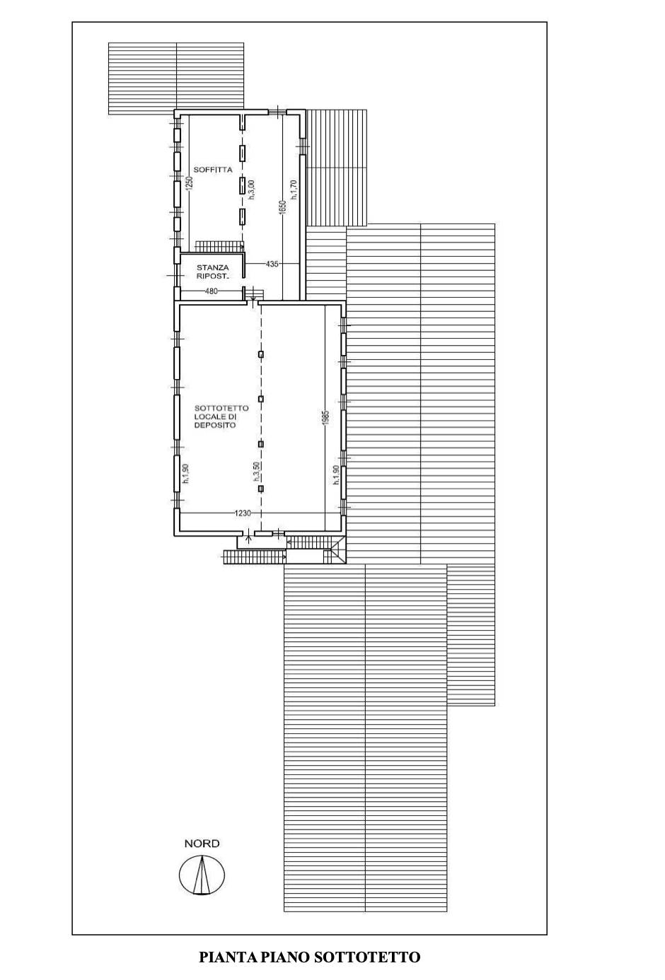
Azienda agricola con cantina vinicola situata a Fara Vicentino (VI) in via Colombare, composta da una parte destinata ad abitazione per una superficie commerciale complessiva di 610 metri quadrati; magazzini e depositi per una superficie commerciale complessiva di 218,4 metri quadrati; capannoni e prodotti agricoli per una superficie commerciale complessiva di 735,5 metri quadrati; terreni agricoli adibiti a vigneto per una superficie commerciale complessiva di 40.266 metri quadrati.
22REB è a disposizione per valutare come la nostra esperienza potrà favorirti nel realizzare il tuo miglior investimento.
L'immobile è oggetto di vendita giudiziaria.
22REB non si occupa di attività di intermediazione imm. di cui alla legge 39/89.
Per motivi di privacy la foto dell'immobile/terreno è indicativa ma non esaustiva.
Caratteristiche principali
Categoria
Azienda Agricola
Classe energetica
In fase di valutazione
Mappa
Via Colombare , Fara Vicentino (VI)