Italiano
English
Español
العربية
223.470 €

Agriturismo a Piana degli Albanesi (PA)

Hotel in vendita • Piana degli Albanesi - contrada Sant’Agata
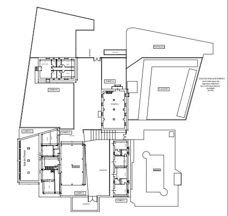
Agriturismo sito a Piana degli Albanesi (PA) in contrada Sant'Agata, costituito da cinque corpi distinti tra loro. Corpo A composto al piano terra, ricevimento e bar, primo piano appartamento del debitore, seminterrato magazzino ex cisterna. Corpo B a due piani con stanze da letto dotate di bagno e salottino comune. Corpo C ad una sola elevazione con n. di stanze da letto prospicente alla piscina. Corpo D\E con due elevazioni fuori terra, il corpo D è composto da stanze dal letto salottino comune soppalcato e bagni, il corpo E è una sala ristorante con camino, cucina e ripostiglio. Corpo F magazzino ad una elevazione fuori terra prospicente al gazebo e dietro alla zona ricezione ad un livello più basso c’è la piscina.


22REB è a disposizione per valutare come la nostra esperienza potrà favorirti nel realizzare il tuo miglior investimento.


L'immobile è oggetto di vendita giudiziaria.

22REB non si occupa di attività di intermediazione imm. di cui alla legge 39/89.
Per motivi di privacy la foto dell'immobile/terreno è indicativa ma non esaustiva.
Caratteristiche principali
Codice
GM785/24
Città
Piana degli Albanesi
Categoria
Hotel
Prezzo
223.470 €
Locali
1
Mq
853,68
Classe energetica
In fase di valutazione
Mappa
contrada Sant’Agata , Piana degli Albanesi (PA)
Condividi su
Cookie preference