Complesso rurale a Tombolo (PD)
Rustico/Casale in vendita • Tombolo - Via Sommavilla
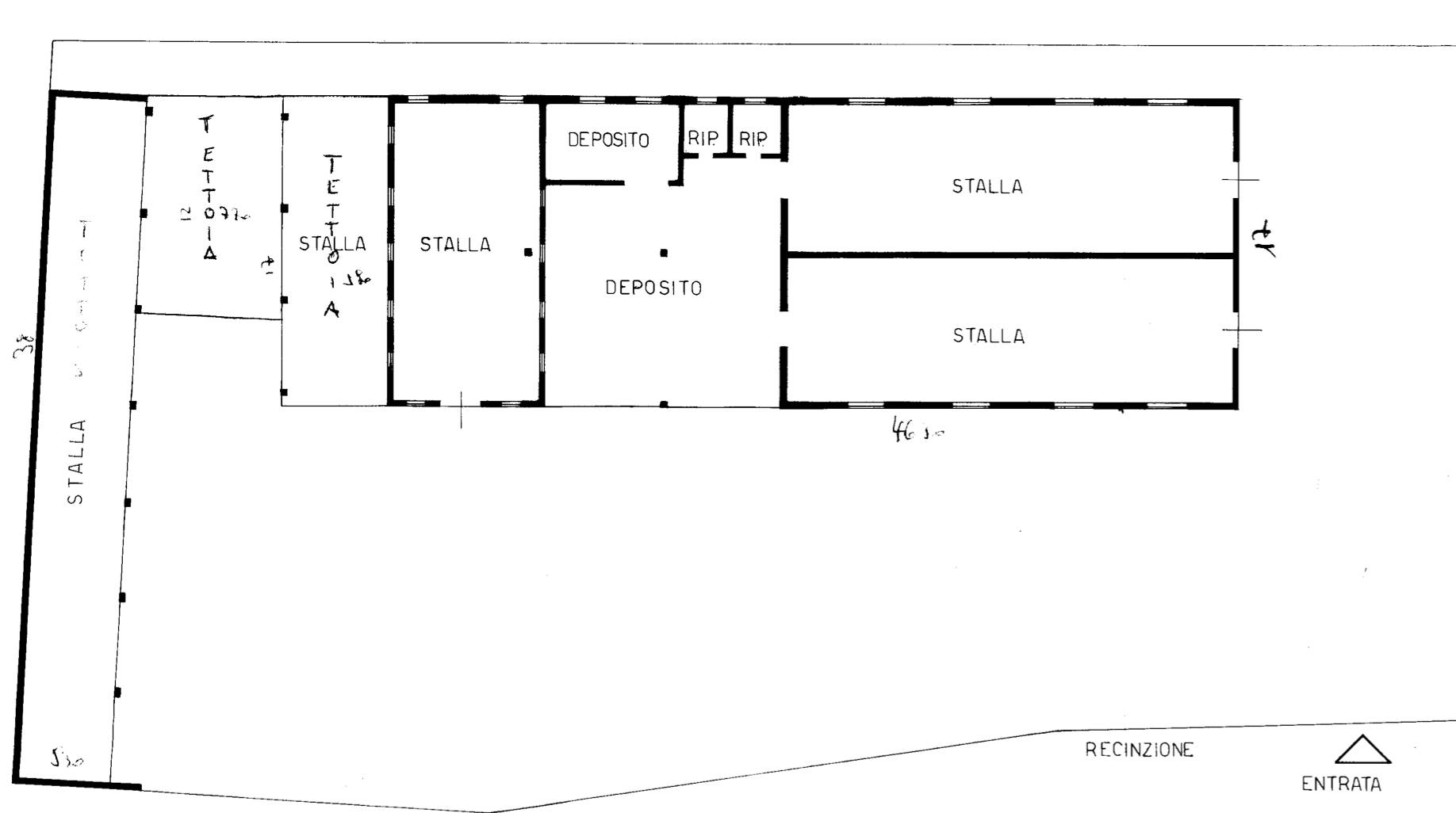
Complesso rurale sito a Tombolo (PD) in via Sommavilla, composto da un corpo principale contenente tre stalle, depositi e ripostigli, oltre a cinque tettoie, due silos ed un piccolo fabbricato; terreni agricoli di pertinenza per una superficie commerciale complessiva di 265 metri quadrati.
22REB è a disposizione per valutare come la nostra esperienza potrà favorirti nel realizzare il tuo miglior investimento.
L'immobile è oggetto di vendita giudiziaria.
22REB non si occupa di attività di intermediazione imm. di cui alla legge 39/89.
Per motivi di privacy la foto dell'immobile/terreno è indicativa ma non esaustiva.
Caratteristiche principali
Classe energetica
In fase di valutazione
Mappa
Via Sommavilla , Tombolo (PD)